|

首页 > 集成灶
独立集成灶 独立集成灶

星耀系列集成灶

Y02-ZKZ

纳米镀钛可拆导流板·蒸烤炸多功能
产品参数
产品亮点
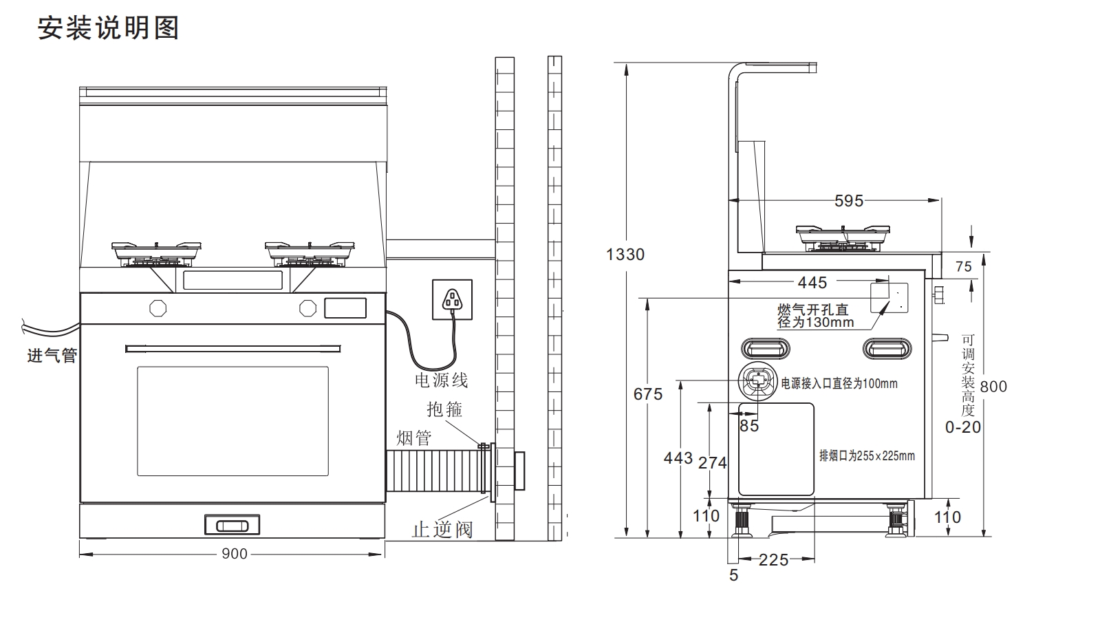
产品尺寸


安装方法
产品视频
产品说明书