|

首页 > 吸油烟机
直吸系列 Top Extraction System

T908

低位吸烟口·自清洁·自动隔烟屏
产品参数
产品亮点
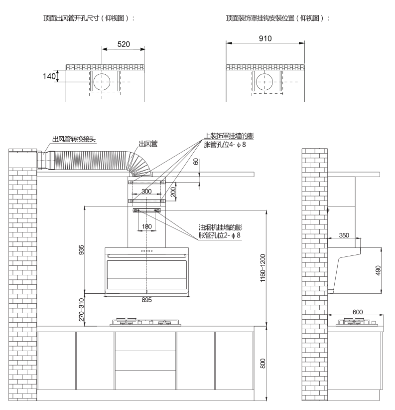
产品尺寸

微信图片_20220414155313.png

安装方法

微信截图_20220707095533.png

产品视频

产品说明书