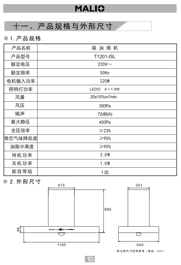
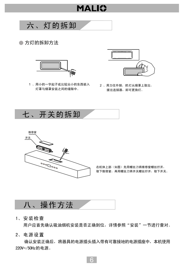
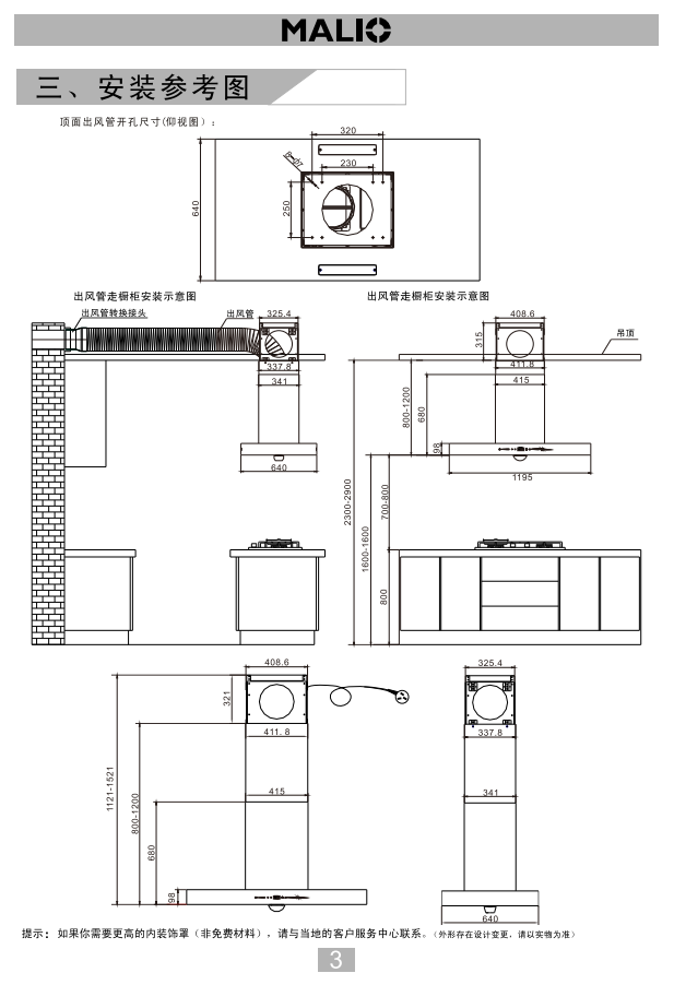
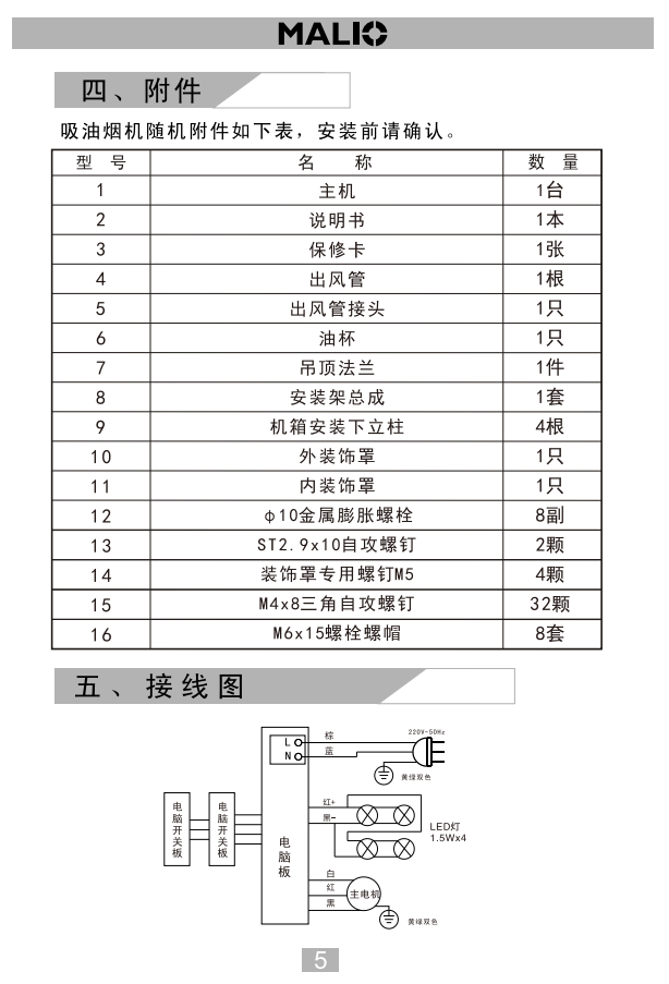
使用说明书

0.png1.png2.png3.png4.png5.png6.png7.png8.png9.png10.png11.png12.png