|

首页 > 水龙头
水龙头渠道专供系列 channel

MT206

产品亮点
产品参数
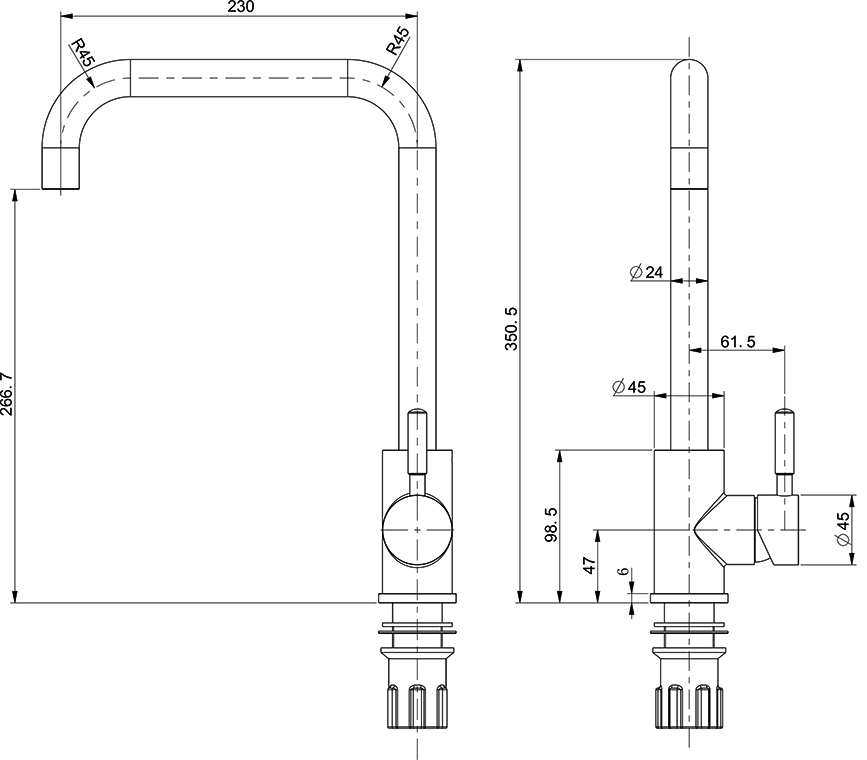
产品尺寸

MT206.jpg