|

首页 > 吸油烟机
烟机渠道专供系列 flue gas channels

金牌油烟机

Y1-T906

产品亮点
产品参数
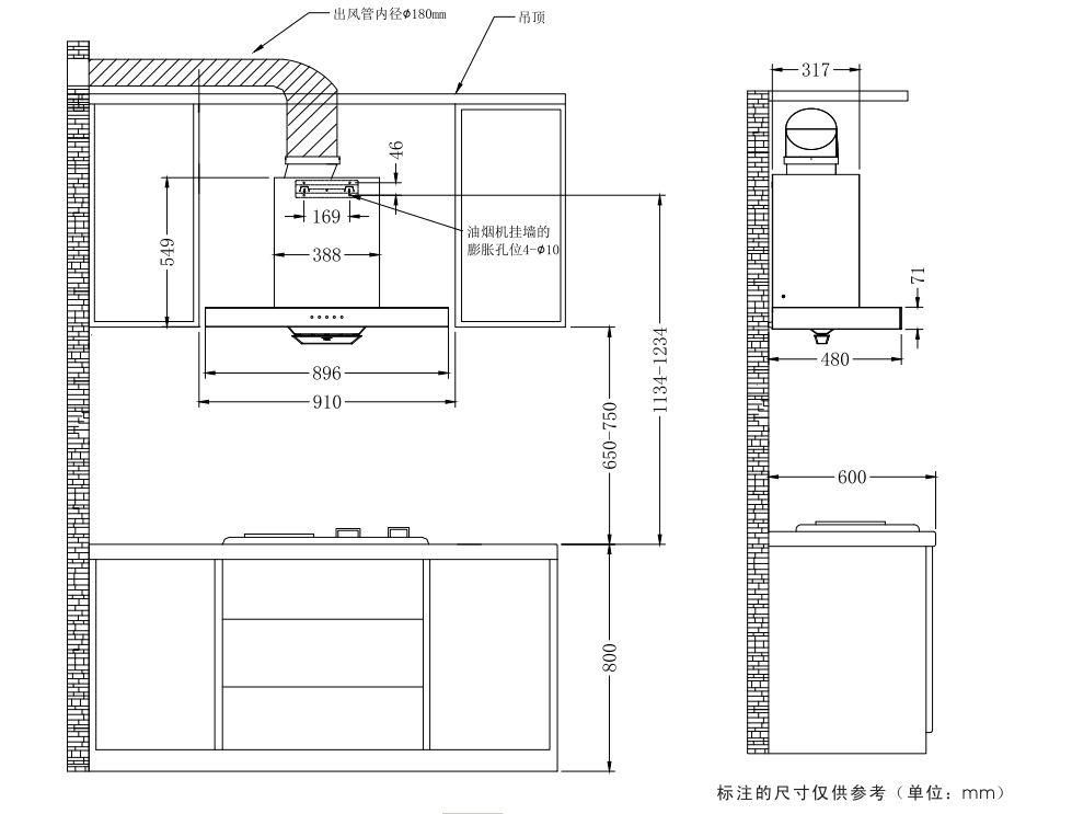
产品尺寸

BS)D3MRX6DFXS`ID8RVQI]V.png

安装方法

BB]RFP1LYMNZ61`2$FG0~}T.png

产品说明书