|

首页 > 吸油烟机
烟机渠道专供系列 flue gas channels

N601(不含装饰罩)

鲸吸速排·风机下置
产品亮点
产品参数
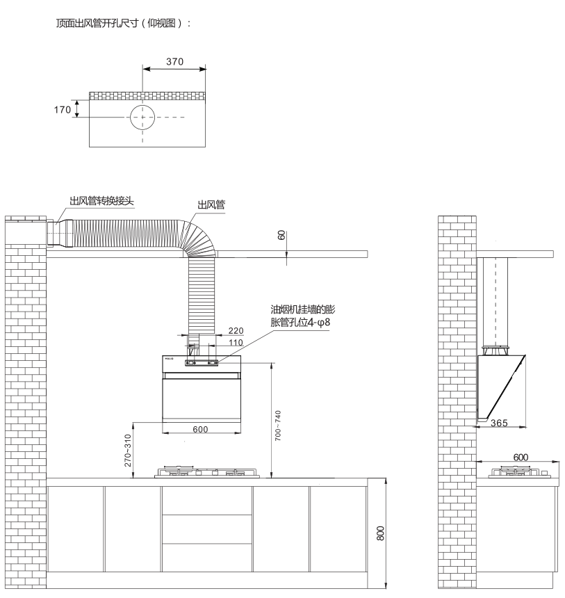
产品尺寸

N601.png

安装方法

微信截图_20220707095302.png